JR信越本線(篠ノ井~長野)篠ノ井駅の検索結果
検索結果:1件
表示件数
件
コメント
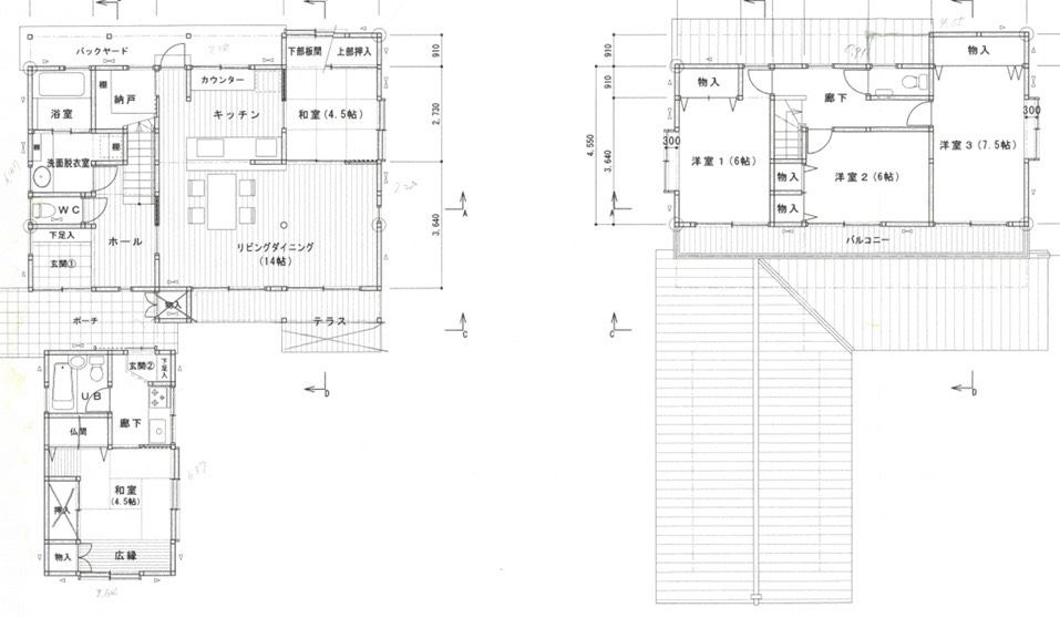
人気の篠ノ井瀬原田土地区画整理地の住宅街の南面道路の中古住宅。
2世帯風に離れを計画、トイレ付ユニットバスに、ミニキッチンもあります。
母屋は和室や食品庫が隣接した大黒柱が特徴の14帖のLDKが使い勝手がよさそうです!
| 価格 | 構造 | 間取り | 建築面積 | 土地面積 | 詳細 | お気に入り |
|---|---|---|---|---|---|---|
| 3,100万円 (税込み) | 木造 | 5LDK (和 4.5・4.5 洋 7.5・6・6 LDK 14) | 253.15㎡ | 詳細 | 追加 |
検索結果:1件
表示件数
件
