長野電鉄長野線中野松川駅の検索結果
検索結果:1件
表示件数
件
コメント
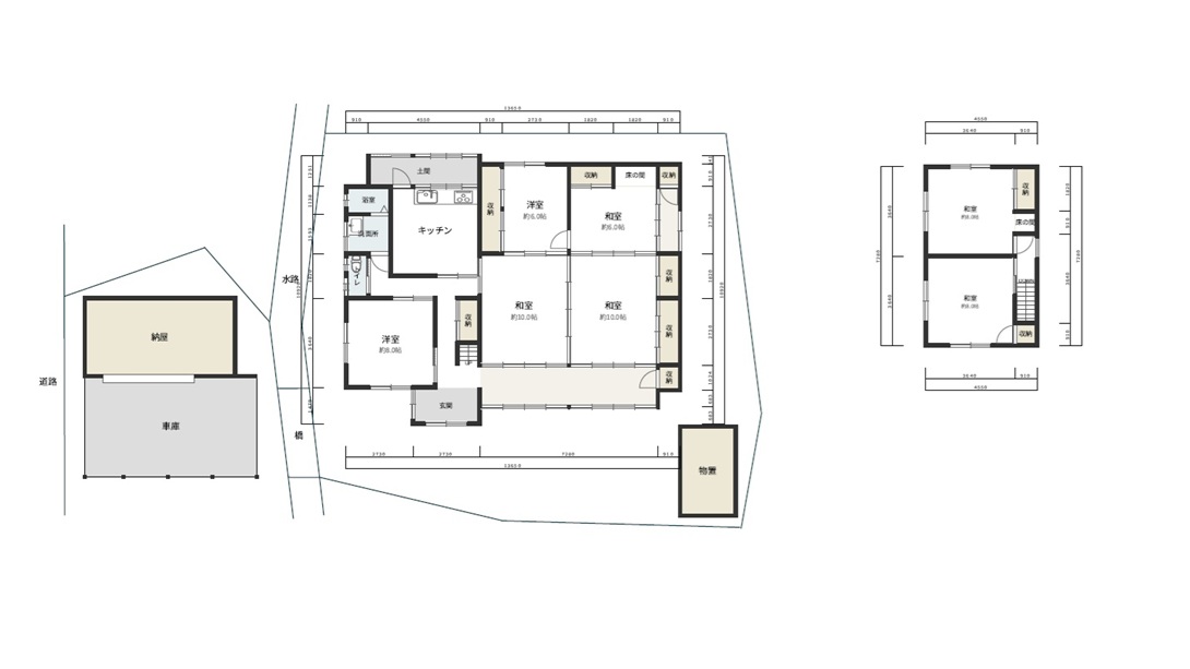
信州中野駅、厚生連北信総合病院まで車で6分の立地です。
5LDKなので親と同居するなど、大家族におすすめします。
リフォームしてからお引渡し致します。水回りは新品になります。また、お風呂は拡張して広くなります。
ガス会社及び司法書士は弊社指定になります。
| 価格 | 構造 | 間取り | 建築面積 | 土地面積 | 詳細 | お気に入り |
|---|---|---|---|---|---|---|
| 1,980万円 (税込み) | 木造 | 5LDK | 277.65㎡ | 詳細 | 追加 |
検索結果:1件
表示件数
件
